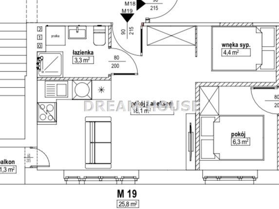
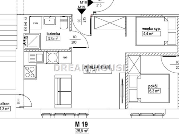
Opis nieruchomości
Szukasz mieszkania dla siebie ?
MAMY !
Szukasz mieszkania inwestycyjnie ?
MAMY :)
Szukasz mieszkania dwupokojowego z balkonem ???
TEŻ MAMY !!!!!!
Lokale od 25 m2 do 45 m2
Możliwość połączenia , podziału ….Możemy stworzyć lokal jakiego szukasz, potrzebujesz, o jakim marzysz za bardzo rozsądne pieniądze.
Mieszkania w nowo remontowanej kamienicy, w stanie developerskim.
PRZY ZAKUPIE MIESZKANIA PRZEZ NAS-PROJEKT GRATIS.
Gorąco zapraszamy do kontaktu i na prezentację.
Nota prawna
Opis oferty zawarty na stronie internetowej sporządzany jest na podstawie oględzin nieruchomości oraz informacji uzyskanych od właściciela, może podlegać aktualizacji i nie stanowi oferty określonej w art. 66 i następnych K.C.Szczegóły



